Model Peak
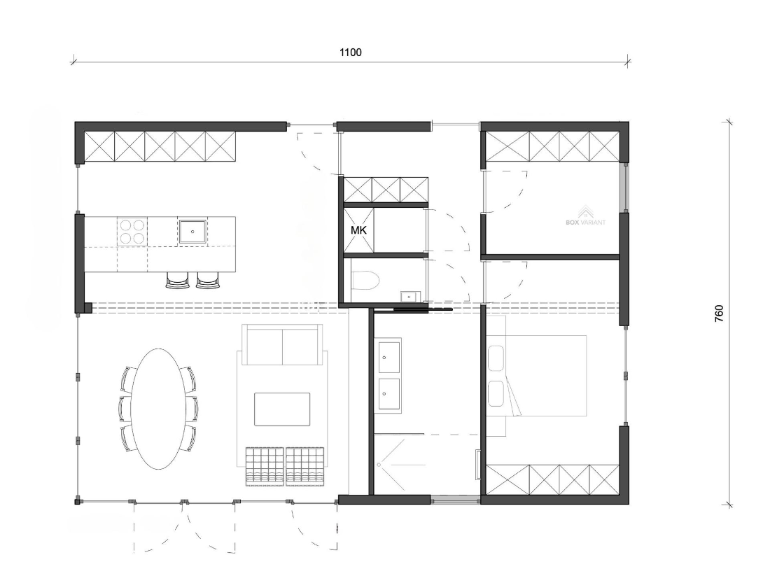
De Peak is een royale mantelzorgwoning van 84 vierkante meter, ontworpen voor ultiem wooncomfort en zelfstandigheid. Met een groot centraal keukeneiland vormt de keuken het hart van de leefruimte, perfect voor samen koken en gezellig samenzijn. De ruime zithoek biedt een sfeervolle plek om te ontspannen, terwijl de volwaardige bijkeuken zorgt voor extra gemak en opbergruimte. Dit doordachte ontwerp combineert stijl en functionaliteit en biedt het gevoel van een luxe villa – een mantelzorgwoning die voelt als een echt thuis.
-
Oppervlakte (segment)
-
Lengte (segment)
-
Breedte (segment)
-
Lengte [mm]
-
Breedte [mm]
-
Aantal slaapkamers
-
Apart toilet
-
Daktype
-
Vloerverwarming
-
Afwerkingsniveau binnenzijde
-
Kozijnen
-
Installatie
-
Isolatienormen
| Oppervlakte (segment): Tussen de 81 en 90 M2 |
| Lengte (segment): Tussen de 10 en 15 m |
| Breedte (segment): Tussen de 6 en 9 m |
| Lengte [mm]: 11000 |
| Breedte [mm]: 7600 |
| Aantal slaapkamers: 2 |
| Apart toilet: Ja |
| Daktype: Platdak |
| Vloerverwarming: Elektrisch |
| Afwerkingsniveau binnenzijde: Premium |
| Kozijnen: Aluminium |
| Installatie: Geen aanvullende installaties |
| Isolatienormen: Permanent bouwbesluit |









