Model Cascade
In de afwerking heeft de klant bewust gekozen voor prijstechnisch gunstige oplossingen, zonder concessies te doen aan functionaliteit en comfort. Dit maakt Model Cascade niet alleen een praktische, maar ook een kostenefficiënte keuze voor wie op zoek is naar een toekomstbestendige mantelzorgwoning.
0,00 €
0,00 €
0,00 €
-
Oppervlakte (segment)
-
Lengte (segment)
-
Breedte (segment)
-
Lengte [mm]
-
Breedte [mm]
-
Aantal slaapkamers
-
Apart toilet
-
Daktype
-
Vloerverwarming
-
Afwerkingsniveau binnenzijde
-
Kozijnen
-
Installatie
-
Isolatienormen
| Oppervlakte (segment): Tussen de 41 en 50 M2 |
| Lengte (segment): Tussen de 10 en 15 m |
| Breedte (segment): Tussen de 3 en 6 m |
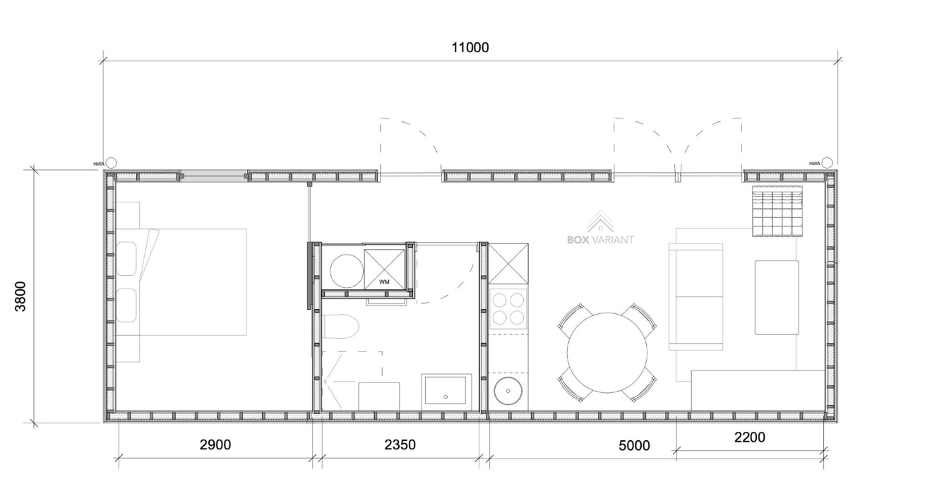
| Lengte [mm]: 11000 |
| Breedte [mm]: 3800 |
| Aantal slaapkamers: 1 |
| Apart toilet: Nee |
| Daktype: Platdak |
| Vloerverwarming: Geen vloerverwarming |
| Afwerkingsniveau binnenzijde: Basis |
| Kozijnen: Kunststof |
| Installatie: Lucht-lucht warmtepomp |
| Isolatienormen: Tijdelijk bouwbesluit |









