Specificaties
✔ 2 Slaapkamers
✔ Volledig elektrisch
✔ Levensduur gelijk aan traditioneel gebouwde woning
✔ Isolatienormen beter dan permanent bouwbesluit
✔Stalen taatsdeur
✔ Vloerverwarming
De Peak is een royale mantelzorgwoning van 84 vierkante meter, ontworpen voor ultiem wooncomfort en zelfstandigheid.
Met een groot centraal keukeneiland vormt de keuken het hart van de leefruimte, perfect voor samen koken en gezellig samenzijn.
De ruime zithoek biedt een sfeervolle plek om te ontspannen, terwijl de volwaardige bijkeuken zorgt voor extra gemak en opbergruimte.
Dit doordachte ontwerp combineert stijl en functionaliteit en biedt het gevoel van een luxe villa – een mantelzorgwoning die voelt als een echt thuis.
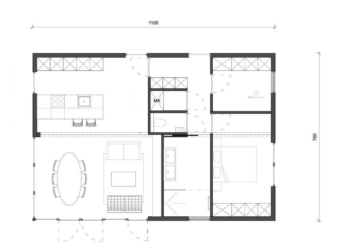
Plattegrond

Bij binnenkomst in de Peak stap je binnen in een centrale hal, die toegang biedt tot alle ruimtes en direct een ruimtelijk gevoel geeft. Vanuit hier betreed je de open leefruimte, waar de keuken en woonkamer samenkomen in een sfeervol geheel.
De keuken met centraal eiland vormt het hart van de woning en is ideaal voor koken, gezellig samen eten of borrelen. Aangrenzend bevindt zich de woonkamer, waar grote ramen zorgen voor veel lichtinval en een fijne connectie met buiten.
Naast de leefruimte biedt de Peak praktische voorzieningen zoals een bijkeuken, waar extra opslagruimte is voor voorraden en apparatuur, en een technische ruimte voor installaties en wasmachine-aansluitingen.
De ruime slaapkamer biedt plek voor een tweepersoonsbed en een royale kastopstelling. De badkamer, bereikbaar vanuit de hal, is voorzien van een inloopdouche, wastafel en toilet en is zo ontworpen dat comfort en toegankelijkheid centraal staan.
De Peak combineert een doordachte indeling met maximale leefruimte, waardoor het een mantelzorgwoning is die aanvoelt als een volwaardige woning.
Exterieur
De Peak brengt binnen en buiten moeiteloos samen dankzij de vouwwanden, die over de volledige breedte van de leefruimte geopend kunnen worden. Hierdoor ontstaat een vloeiende overgang naar het terras of de tuin, ideaal om in alle seizoenen te genieten van de buitenlucht. Op zonnige dagen zet je de wanden helemaal open en wordt de leefruimte één met de natuur. Dit zorgt niet alleen voor een gevoel van vrijheid, maar ook voor een lichte, open sfeer in de woning.
Het exterieur van de Peak straalt moderne elegantie uit, dankzij de combinatie van thermisch gemodificeerde gevelbekleding en strakke zwarte kozijnen. De gevelbekleding, vervaardigd uit duurzaam verduurzaamd hout, geeft de woning een warme, natuurlijke uitstraling en is tegelijkertijd onderhoudsarm en weerbestendig. De zwarte kozijnen zorgen voor een stijlvol contrast en versterken het moderne karakter van de woning. Dit samenspel van materialen zorgt ervoor dat de Peak niet alleen functioneel en duurzaam is, maar ook een luxe uitstraling heeft die perfect past in elke omgeving.
Woonkamer
Bij binnenkomst door de stijlvolle stalen taatsdeuren word je direct verwelkomd in een warme en luxe leefomgeving. De woonkamer is volledig gemeubileerd door Box Variant, waardoor alles perfect op elkaar is afgestemd. Van comfortabele zitmeubelen tot functionele opbergoplossingen – alles draagt bij aan een gezellige en uitnodigende sfeer.
De open indeling zorgt ervoor dat de prachtige keuken met eiland meteen in het oog springt, waardoor koken en samenzijn moeiteloos samengaan. De combinatie van hoogwaardige meubels en een doordacht interieurontwerp maakt deze ruimte niet alleen stijlvol, maar ook direct klaar voor gebruik.
Keuken
De keuken van de Peak is een stijlvolle en functionele blikvanger, met een ruim kookeiland als centraal punt. Hier komen design en gebruiksgemak samen, met strakke lijnen en hoogwaardige materialen.
De keuken is uitgerust met luxe apparatuur, waaronder een geïntegreerde afzuigkap die subtiel in het kookvlak is verwerkt voor een open en ruimtelijk gevoel. Daarnaast zorgt het inbouw koffiezetapparaat voor perfect gezette koffie met één druk op de knop. Deze combinatie van slimme technologie en modern design maakt de keuken een heerlijke plek om te koken en te genieten.
Badkamer
De badkamer van de Peak biedt een perfecte balans tussen comfort en luxe. Het strakke, moderne design met hoogwaardige materialen zorgt voor een tijdloze uitstraling.
De ruime inloopdouche met glazen wanden en een regen- of handdouche biedt een ontspannen wellness-ervaring. Daarnaast is de badkamer voorzien van een stijlvol wastafelmeubel met voldoende opbergruimte en een grote spiegel die de ruimte extra licht en ruimtelijk maakt.
Het zwevende toilet draagt bij aan de strakke afwerking en eenvoudige reiniging. Dankzij slimme indelingen en luxe details is de badkamer een plek waar dagelijks comfort en ontspanning samenkomen.
Opbergruimte
De Peak combineert functionaliteit met esthetiek, en dat zie je terug in de slim ontworpen bergruimte. Deze is naadloos geïntegreerd in het interieur en uitgevoerd met hetzelfde hoogwaardige materiaal als de keuken, geleverd door onze keukenleverancier. Hierdoor vormt de ruimte een strak en uniform geheel.
Achter deze stijlvolle wand bevindt zich een praktische opstelling met wasmachine, droger en kastruimte, waardoor alles netjes uit het zicht blijft. Dit slimme ontwerp biedt volop opbergruimte zonder concessies te doen aan de uitstraling van de woning.
Overkapping
De Peak biedt niet alleen een ruim interieur, maar ook een prachtige overkapping met glazen dak, die de leefruimte optisch vergroot en een naadloze overgang naar buiten creëert. Dankzij het transparante dak geniet je van natuurlijk licht, terwijl je toch beschut zit tegen weersinvloeden.
Wanneer de vouwwanden volledig geopend zijn, ontstaat er een royale binnen-buitenbeleving, perfect om in alle seizoenen te genieten van het buitenleven. Of het nu gaat om een ontspannen ochtend met een kop koffie of een gezellige avond met vrienden, deze overkapping voegt extra comfort en luxe toe aan de mantelzorgwoning.
Interesse?
Plan een bezoek!