Specificaties
✔ 2 Slaapkamers
✔ Volledig elektrisch
✔ Levensduur gelijk aan traditioneel gebouwde woning
✔ Isolatienormen beter dan permanent bouwbesluit
✔Binnendeuren zijn schuifdeuren
✔ Vloerverwarming
✔Monoblock warmtepomp met koelfunctie
Deze moderne mantelzorgwoning van 70 m² is een prachtig voorbeeld van stijlvol en praktisch wonen. Met een strakke en natuurlijke uitstraling past Model Mountain perfect in iedere omgeving.
Binnen wordt je verwelkomd door een lichte en open leefruimte, met grote ramen en een schuifpui die het buitenleven naar binnen haalt. De afwerking is strak en modern, met een warme houtlook vloer en subtiele ingebouwde verlichting.
Dankzij de volledig elektrische installatie is deze woning duurzaam maar ook bijzonder comfortabel. Dit project laat perfect zien hoe prefab maatwerk een stijlvolle en functionele woonoplossing kan bieden!
Lees verder en laat je verrassen door de unieke charme en luxe van deze woning!
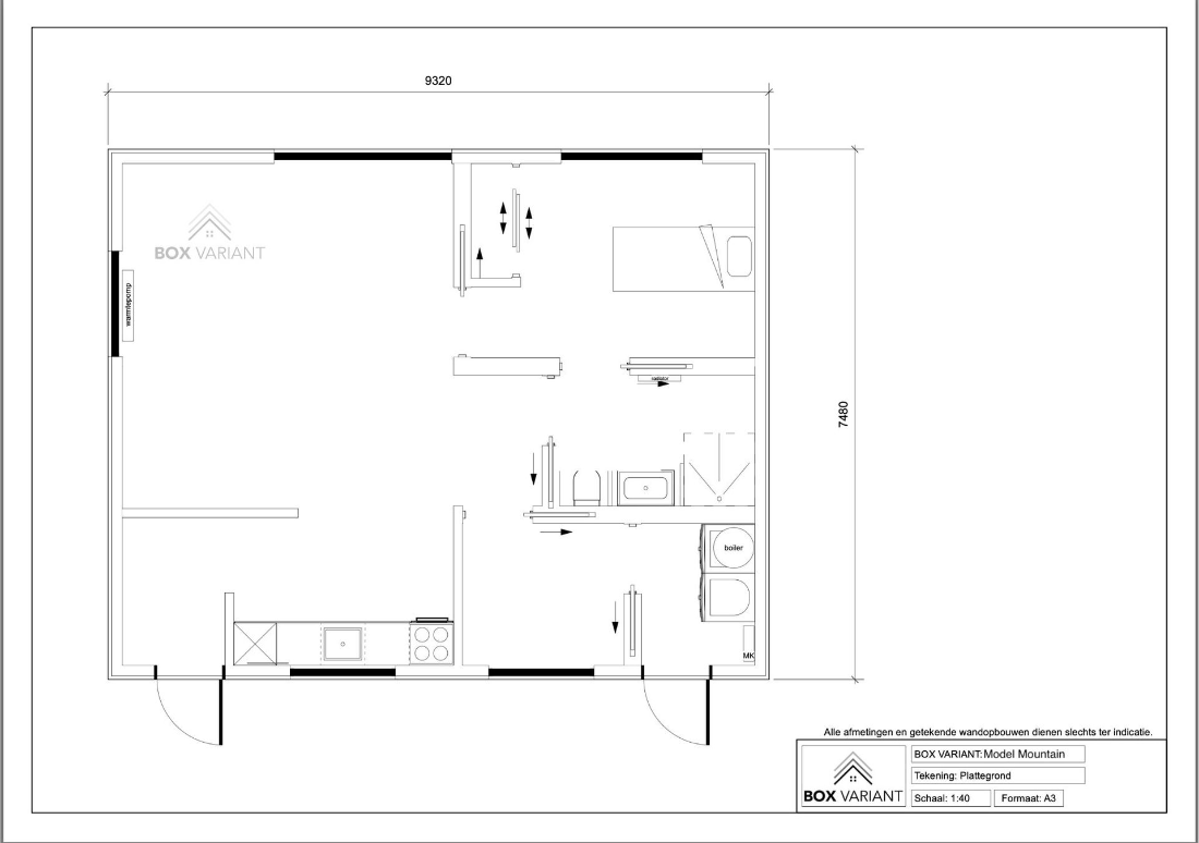
Plattegrond

Deze mantelzorgwoning is uitgerust met twee buitendeuren, elk met een eigen functie. De eerste deur leidt naar de meterkastruimte, waar ook de wasmachine en droger zijn geplaatst. De tweede deur opent naar de keuken en woonkamer, waar een open en lichte leefruimte centraal staat. Vanuit de keuken bereik je aan de rechterkant de badkamer, die op haar beurt via een schuifdeur direct in verbinding staat met de hoofdslaapkamer. De tweede slaapkamer bevindt zich naast de technische ruimte en biedt een flexibele invulling, bijvoorbeeld als logeerkamer. Dit ontwerp laat zien hoe efficiënt en doordacht een compacte woonruimte kan worden ingedeeld.
Exterieur
Het exterieur van deze mantelzorgwoning straalt moderniteit en warmte uit. De gevel is bekleed met een hoogwaardige kunststof houtlook afwerking, waardoor de woning de natuurlijke charme van hout heeft, maar met de duurzaamheid en onderhoudsvriendelijkheid van kunststof. De zwarte kozijnen en het stijlvolle dak geven het geheel een eigentijdse en luxe uitstraling.
De woonkamer opent zich via een royale schuifpui direct naar de tuin, waardoor je de buitenruimte als een verlengstuk van je leefomgeving ervaart. De grote ramen zorgen voor een overvloed aan natuurlijk licht, waardoor de woning een lichte en ruimtelijke uitstraling krijgt.
Woonkamer
De woonkamer voelt ruimtelijk en licht aan dankzij de grote ramen die het daglicht prachtig naar binnen laten stromen. Voor een sfeervolle ambiance zijn er stijlvolle inbouwspotjes verwerkt in het plafond bij de ramen, waardoor de ruimte ook in de avond een warme en uitnodigende uitstraling heeft.
Keuken
De keuken is stijlvol en praktisch ingericht, voorzien van alle moderne gemakken die je nodig hebt. Terwijl je kookt, geniet je van een prachtig uitzicht door het grote raam, waardoor de ruimte nog lichter en ruimtelijker aanvoelt. Dankzij de open verbinding met de woonkamer blijft het geheel luchtig en uitnodigend, perfect voor gezellig samen zijn.
Badkamer
De badkamer is royaal opgezet, precies zoals je mag verwachten in een comfortabele mantelzorgwoning. De ruimte biedt niet alleen een luxe uitstraling, maar ook praktische voorzieningen, zoals een stevige steun bij het toilet voor extra gemak en veiligheid.
Slaapkamers
De woning beschikt over een comfortabele hoofd slaapkamer die is uitgerust met een stijlvolle, ingebouwde kledingkast. De hoofd slaapkamer biedt optimaal gemak met directe toegang tot zowel de badkamer als de woonkamer via handige schuifdeuren, waardoor de ruimte naadloos in elkaar overloopt. Daarnaast is er een tweede kamer, ideaal als logeerkamer of flexibele ruimte.
Interesse?
Plan een bezoek!