Specificaties
✔ 1 Slaapkamer
✔ Volledig elektrisch
✔ Levensduur gelijk aan traditioneel gebouwde woning
✔ Isolatienormen beter dan permanent bouwbesluit
✔ Vloerverwarming
✔Monoblock warmtepomp met koelfunctie
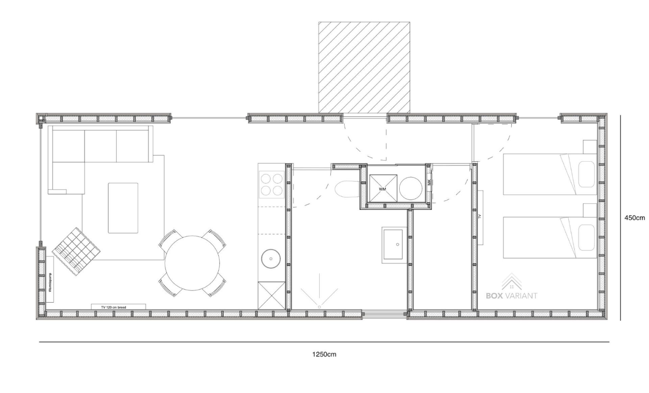
Model Leaf is een stijlvolle en functionele mantelzorgwoning met een afmeting van 12,5 x 4,5 meter. Dit model is ontworpen met oog voor comfort, zelfstandigheid en een prettige leefomgeving, speciaal voor zorgbehoevenden die dichtbij familie of mantelzorgers willen wonen. Dankzij de overdekte entree biedt de woning extra beschutting en een gastvrije uitstraling, ideaal voor alle seizoenen.
De woning is praktisch ingedeeld en biedt alle essentiële voorzieningen voor een zelfstandig en aangenaam verblijf. Het moderne ontwerp, gecombineerd met hoogwaardige materialen, zorgt voor een duurzame en onderhoudsvriendelijke oplossing. Model Leaf is meer dan een woning; het is een volwaardige leefomgeving die naadloos aansluit op de wensen en behoeften van haar bewoners.
Plattegrond

Model Leaf is efficiënt ingedeeld om optimaal wooncomfort te bieden binnen een compacte ruimte. Bij binnenkomst via de overdekte entree stap je direct in een lichte en uitnodigende leefruimte, waar de woonkamer en keuken naadloos in elkaar overlopen. De keuken is voorzien van alle moderne gemakken en biedt voldoende opbergruimte.
Aangrenzend bevindt zich de slaapkamer, die groot genoeg is voor een tweepersoonsbed en kastruimte. Daarnaast beschikt de woning over een badkamer met een inloopdouche, toilet en wastafel, ontworpen met aandacht voor toegankelijkheid en comfort.
Dankzij de slimme indeling voelt Model Leaf ruim aan en biedt het alles wat nodig is voor zelfstandig wonen, met een logische en functionele opzet die het dagelijks leven zo aangenaam mogelijk maakt.
Exterieur
Model Leaf is ontworpen met een kunststof gevelbekleding, wat zorgt voor een moderne uitstraling én onderhoudsgemak. Dit duurzame materiaal is bestand tegen verschillende weersinvloeden en heeft nauwelijks onderhoud nodig, waardoor de woning er jarenlang verzorgd uit blijft zien. De strakke lijnen en hoogwaardige afwerking geven het exterieur een eigentijdse en stijlvolle uitstraling, passend in elke omgeving.
De woning is voorzien van grote ramen tot aan de grond, waardoor er veel natuurlijk daglicht binnenkomt en een ruimtelijk gevoel wordt gecreëerd. Dit zorgt niet alleen voor een prettige woonervaring, maar biedt ook een prachtig uitzicht op de omgeving.
De ramen zijn standaard uitgerust met plissé raamdecoratie, waarmee eenvoudig de gewenste balans tussen privacy en lichtinval kan worden geregeld. Deze combinatie van esthetiek en functionaliteit maakt Model Leaf een comfortabele en uitnodigende leefomgeving.
Woonkamer
De woonkamer van Model Leaf is ontworpen om een ruimtelijk en huiselijk gevoel te creëren. Dankzij de grote ramen tot aan de grond valt er volop natuurlijk daglicht binnen, wat zorgt voor een open en frisse sfeer. De ramen bieden daarnaast een prachtig uitzicht op de omgeving en versterken het gevoel van vrijheid en verbondenheid met buiten.
De open opzet van de woonkamer sluit naadloos aan op de keuken, waardoor er een aangename en praktische leefruimte ontstaat. Er is voldoende plek voor een comfortabele zithoek en een eettafel, zodat bewoners optimaal kunnen genieten van hun dagelijkse momenten.
Keuken
De keuken van Model Leaf is slim ontworpen om functionaliteit en comfort te combineren binnen een compacte ruimte. Met een praktische indeling biedt deze keuken alles wat nodig is voor een aangename kookervaring.
De opstelling is voorzien van moderne inbouwapparatuur, waaronder een kookplaat, afzuiging, koelkast en optioneel een oven of vaatwasser. Hierdoor is de keuken volledig uitgerust voor dagelijks gebruik, zonder in te leveren op ruimte en efficiëntie.
Badkamer
De badkamer van Model Leaf is optimaal ingericht voor rolstoelvriendelijkheid en toegankelijkheid. De ruime inloopdouche is drempelloos en biedt voldoende manoeuvreerruimte, zodat deze eenvoudig en veilig te gebruiken is.
Het hangtoilet is op een ergonomische hoogte geplaatst en kan worden voorzien van extra steunen of beugels voor extra stabiliteit en comfort.
Slaapkamer
De slaapkamer van Model Leaf is ontworpen met comfort en gebruiksgemak als uitgangspunt. De ruimte is royaal genoeg voor een tweepersoonsbed en biedt voldoende opbergmogelijkheden, zoals een kledingkast of ingebouwde kastruimte.
Interesse?
Plan een bezoek!