Specificaties
✔ 2 Slaapkamers
✔ Volledig elektrisch
✔ Levensduur gelijk aan traditioneel gebouwde woning
✔ Isolatienormen beter dan permanent bouwbesluit
✔ Vloerverwarming
Model Flora is een royale mantelzorgwoning die zijn veelzijdigheid bewijst in uiteenlopende toepassingen. Oorspronkelijk ontworpen als comfortabele en zelfstandige leefomgeving, is deze nu ingezet als bedrijfsgebouw en geïntegreerd als aanbouw tegen een hospice. Hier vervult Model Flora een warme en functionele rol als familiekamer, een plek waar naasten in alle rust samen kunnen zijn.
De uitstraling van Model Flora is verfijnd en eigentijds. De gevelbekleding is gemodificeerd voor een harmonieuze aansluiting op de omgeving, terwijl de strakke zwarte kozijnen zorgen voor een stijlvolle en tijdloze afwerking. Dit model laat zien hoe flexibiliteit en hoogwaardige afwerking hand in hand gaan, passend bij de wensen en behoeften van elke situatie.
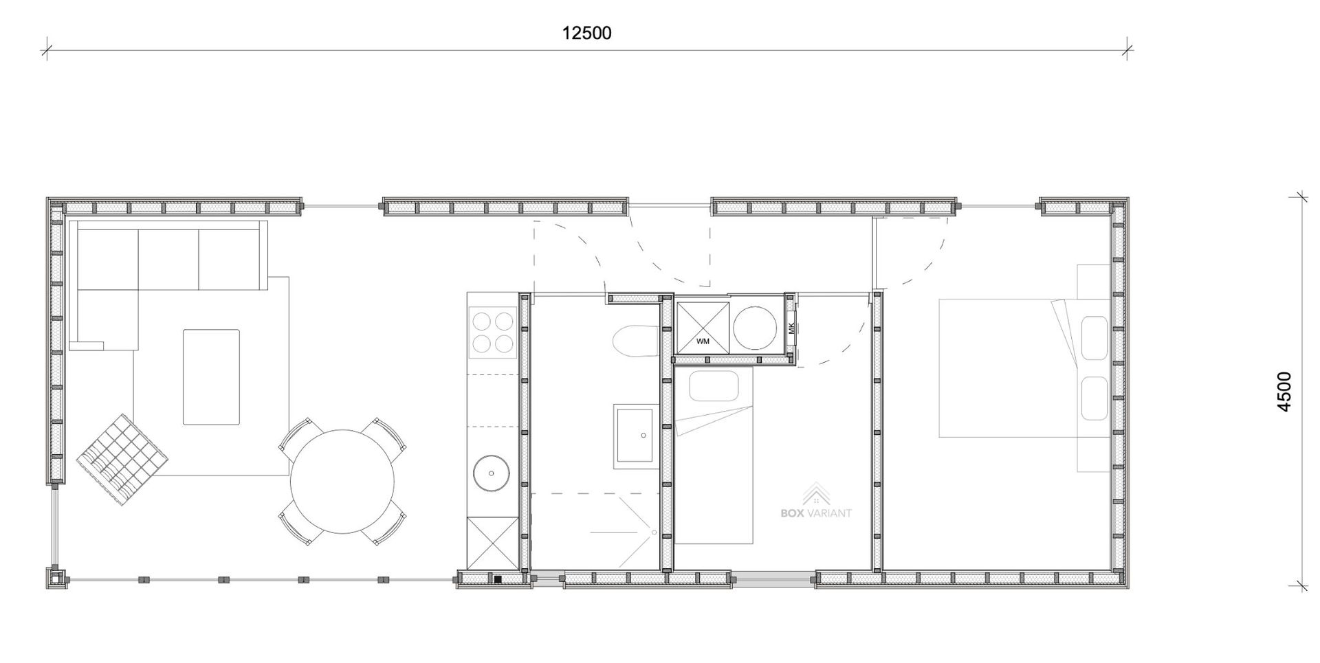
Plattegrond

Model Flora is ontworpen met een logische en functionele indeling die optimaal gebruikmaakt van de beschikbare ruimte. De entree bevindt zich centraal in de woning en biedt direct toegang tot de hal. Vanuit hier stap je de leefruimte binnen, waar gigantische raampartijen zorgen voor een overvloed aan natuurlijk licht en een open, ruimtelijk gevoel. De open kamer en keuken sluiten naadloos op elkaar aan, wat zorgt voor een aangename en uitnodigende sfeer.
Ondanks het compacte ontwerp is de badkamer van alle gemakken voorzien en efficiënt ingedeeld, zonder in te leveren op comfort. Met twee aparte slaapkamers biedt Model Flora extra flexibiliteit: de tweede kamer kan dienen als logeerkamer, een rustige werkplek of zelfs als handige voorraadkast. Dit maakt de woning niet alleen geschikt voor mantelzorg, maar ook breed inzetbaar voor andere doeleinden, zoals in deze opstelling als familiekamer binnen het hospice.
Exterieur
Het exterieur van Model Flora straalt luxe en tijdloze klasse uit. De gevel is bekleed met gemodificeerd hout van hoogwaardige kwaliteit, dat met de jaren op natuurlijke wijze mooi vergrijst. Deze warme, natuurlijke uitstraling wordt stijlvol gecontrasteerd met strakke zwarte details, waaronder de kozijnen en de daktrom, wat zorgt voor een modern en verfijnd geheel.
Een subtiel industrieel accent wordt toegevoegd door de zinken hemelwaterafvoeren, die niet alleen functioneel zijn, maar ook bijdragen aan de exclusieve uitstraling van het ontwerp. Waar onze mantelzorgwoningen normaal laag op de grond staan, is Model Flora in dit project verhoogd geplaatst om perfect aan te sluiten op de bestaande bouw van het hospice. De onderzijde is daarbij stijlvol afgewerkt met zwarte beplanking, waardoor het geheel naadloos in de omgeving opgaat en een solide basis vormt voor deze bijzondere toepassing als familiekamer.
Entree
De centrale entree van Model Flora is niet alleen functioneel, maar draagt ook bij aan de elegante uitstraling van de woning. De zwarte toegangsdeur sluit perfect aan bij de moderne kozijnen en zorgt voor een strak geheel.
Dankzij de strategische plaatsing in het midden van de gevel ontstaat een logische en uitnodigende toegang, die direct leidt naar de lichte en open leefruimte. De ruime doorgang en doordachte afwerking maken de entree zowel praktisch als stijlvol, passend bij de hoogwaardige uitstraling van het exterieur.
Model Flora combineert comfort met doordachte functionaliteit. Een belangrijk onderdeel hiervan is de efficiënte bergruimte, waar slimme oplossingen zorgen voor een opgeruimde en georganiseerde leefomgeving. Achter stijlvolle schuifdeuren bevindt zich een handige nis die speciaal is ontworpen voor de wasmachine en droger. Hierdoor blijven deze apparaten netjes uit het zicht, terwijl ze toch eenvoudig toegankelijk zijn.
Woonkamer
De woonkamer en keuken van Model Flora vormen samen een ruimtelijk en licht geheel, waarbij het gebruik van grote glaspartijen een centrale rol speelt. Dankzij de gigantische raampartijen stroomt het daglicht royaal naar binnen, wat de leefruimte een open en uitnodigend karakter geeft. Dit zorgt niet alleen voor een aangename sfeer, maar versterkt ook het gevoel van verbondenheid met de omgeving.
Keuken
De open keuken is functioneel en stijlvol ingedeeld, met voldoende werk- en opbergruimte om comfortabel te koken en te genieten. Door de vloeiende overgang tussen keuken en woonkamer ontstaat een natuurlijke interactie tussen beide ruimtes, ideaal voor zowel ontspanning als sociale momenten. Of het nu een rustige ochtend is met een kop koffie of een gezellige avond met familie, de royale leefruimte biedt een perfecte balans tussen luxe en huiselijkheid.
Badkamer
De badkamer van Model Flora is compact, maar biedt een luxueuze uitstraling en optimaal comfort. Het luxe kraanwerk in een strakke zwarte afwerking voegt een moderne en chique touch toe, terwijl de onderhoudsarme wandbekleding in een elegante betonlook zorgt voor een robuuste en tijdloze uitstraling. Als subtiele, maar sfeervolle break is er een olijfgroene accentstrook toegevoegd, die de ruimte een warme en natuurlijke uitstraling geeft.
Slaapkamers

De slaapkamer in Model Flora is ruim opgezet en biedt een comfortabele en rustige plek om tot ontspanning te komen. Hoewel de kamer niet standaard is voorzien van een schuifwandkast, leent de indeling zich hier perfect voor. Er is voldoende ruimte om een praktische opbergoplossing te integreren zonder dat dit ten koste gaat van het gevoel van ruimtelijkheid.
Interesse?
Plan een bezoek!