Specificaties
✔ 1 Slaapkamer
✔ Volledig elektrisch
✔ Levensduur gelijk aan traditioneel gebouwde woning
✔ Isolatienormen beter dan permanent bouwbesluit
✔ Badkamer extra ruim
✔ Monoblock warmtepomp met koelfunctie
Model Cascade is ontworpen met oog voor zorg en comfort, speciaal ontwikkeld als mantelzorgwoning. Deze hoogwaardige leefomgeving combineert een solide bouwkwaliteit met een doordachte indeling die extra ruimte biedt in de badkamer, waardoor zorgverlening gemakkelijker wordt. De woning is volledig geïsoleerd en gebouwd op een gestorte vloer, wat zorgt voor duurzaamheid en een aangenaam binnenklimaat.
In de afwerking heeft de klant bewust gekozen voor prijstechnisch gunstige oplossingen, zonder concessies te doen aan functionaliteit en comfort. Dit maakt Model Cascade niet alleen een praktische, maar ook een kostenefficiënte keuze voor wie op zoek is naar een toekomstbestendige mantelzorgwoning.
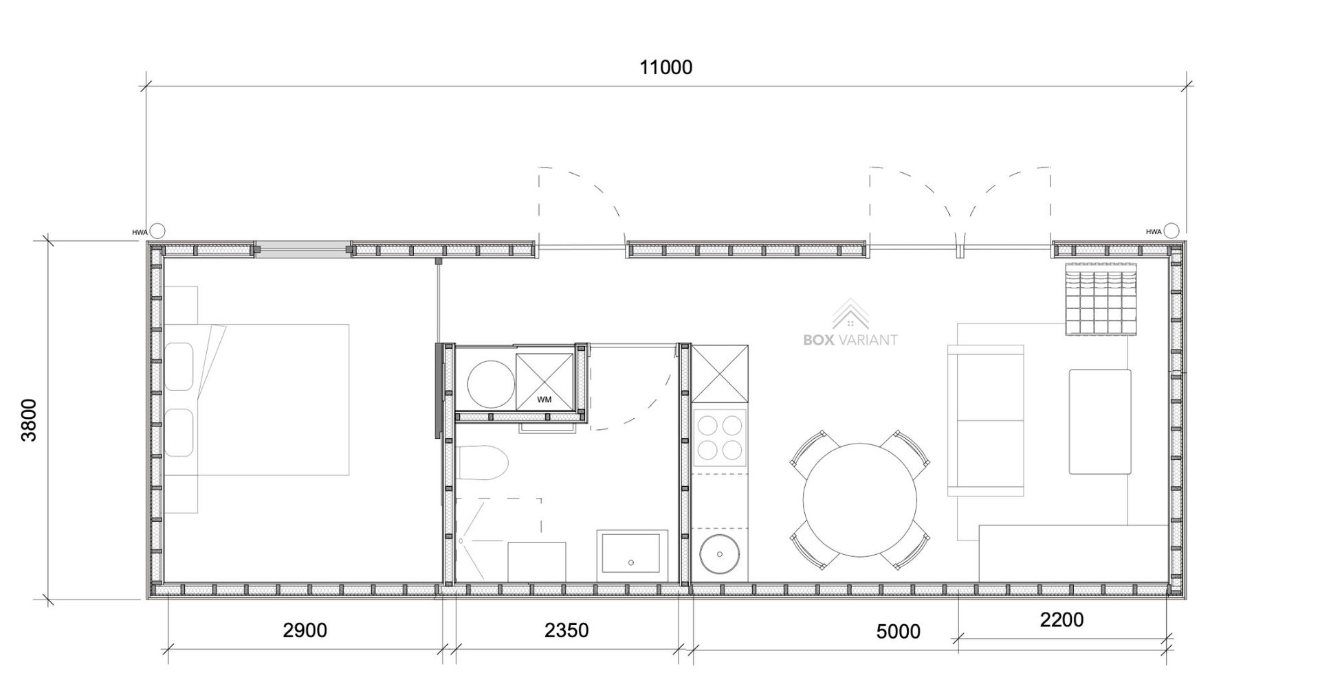
Plattegrond

Model Cascade is een compact en efficiënt vormgegeven mantelzorgwoning, waarbij functionaliteit en toegankelijkheid centraal staan. De indeling is zorgvuldig afgestemd op praktisch gebruik en optimaal ruimtegebruik.
Bij binnenkomst betreedt u een gang die direct toegang biedt tot de technische ruimte en de wasmachine-opstelling, beide bereikbaar via schuifdeuren. Deze slimme oplossing bespaart ruimte en zorgt voor een strakke, opgeruimde uitstraling.
De leefruimte is een open en gecombineerde ruimte waarin de woonkamer en keuken samenkomen, wat zorgt voor een ruimtelijk gevoel en optimaal gebruiksgemak. Dankzij de logische en efficiënte opzet blijft er voldoende bewegingsvrijheid over, zonder in te leveren op comfort.
De slaapkamer is toegankelijk via een schuifdeur, wat niet alleen ruimte bespaart maar ook bijdraagt aan de toegankelijkheid. Deze doordachte indeling maakt Model Cascade tot een comfortabele en praktische mantelzorgwoning waarin zowel zelfstandigheid als zorg op een prettige manier samenkomen.
Exterieur
Model Cascade heeft een modern en eigentijds exterieur, waarbij gekozen is voor duurzame en onderhoudsvriendelijke materialen. De gevelbekleding is uitgevoerd in kunstpost en horizontaal verwerkt, wat de woning een strakke en verfijnde uitstraling geeft. De antracietkleurige kozijnen sluiten hier perfect op aan en versterken de moderne look. Om een directe verbinding met buiten te creëren, is er gekozen voor stijlvolle tuindeuren, die zorgen voor veel lichtinval en een ruimtelijk gevoel.
De afwerking van het exterieur is tot in detail doordacht. De hemelwaterafvoeren (HWA) zijn uitgevoerd in zwart, waardoor ze subtiel opgaan in het geheel en bijdragen aan de strakke uitstraling van de woning. Voor extra comfort en privacy zijn de ramen voorzien van plissé raamdecoratie, die niet alleen de ruimte volledig kan verduisteren, maar ook helpt om warmte buiten te houden. Dit zorgt ervoor dat de leefomgeving in alle seizoenen aangenaam en energie-efficiënt blijft.
Entree
De entree van Model Cascade is met zorg ontworpen om een warme en uitnodigende uitstraling te creëren. Links en rechts van de ingang zijn sfeervolle buitenlampjes geplaatst, die niet alleen zorgen voor functionele verlichting in de avonduren, maar ook bijdragen aan een huiselijke en gezellige ambiance. Deze verlichting benadrukt de strakke lijnen van de gevel en maakt de woning ook in het donker goed zichtbaar en toegankelijk.
Woonkamer
De woonkamer van Model Cascade voelt ruim aan door de open indeling met de keuken en de grote ramen met tuindeuren. Dit zorgt voor veel natuurlijk licht en een directe verbinding met buiten. De plissé raamdecoratie zorgt voor privacy en klimaatbeheersing. Dankzij de slimme indeling is er voldoende ruimte voor een comfortabele zit- en eethoek, waardoor deze woonkamer zowel praktisch als sfeervol is.
Keuken
De keuken van Model Cascade is slim ingedeeld en biedt alle essentiële voorzieningen binnen handbereik. Ondanks het compacte formaat is er voldoende werk- en opbergruimte, waardoor koken efficiënt en comfortabel blijft. De open verbinding met de woonkamer zorgt voor een ruimtelijk gevoel en houdt de keuken betrokken bij het woongedeelte. Dankzij de doordachte opzet is deze keuken niet alleen functioneel, maar ook stijlvol en gebruiksvriendelijk.
Badkamer
Naast de praktische indeling is er gekozen voor onderhoudsvriendelijke materialen die bijdragen aan een frisse en moderne uitstraling. Brede doorgangen en een drempelloze vloer verhogen het gebruiksgemak, terwijl de doordachte plaatsing van steunen en handgrepen extra ondersteuning biedt. Dit maakt de badkamer niet alleen rolstoelvriendelijk, maar ook toekomstbestendig.
De badkamer van Model Cascade is speciaal ontworpen met extra ruimte om zorgverlening en toegankelijkheid te vergemakkelijken. Dankzij de ruime opzet is manoeuvreren met een rolstoel of rollator eenvoudig, zonder in te leveren op functionaliteit.
Slaapkamer
De slaapkamer van Model Cascade is compact maar efficiënt ingedeeld, met voldoende ruimte voor een comfortabel bed en opbergmogelijkheden. Dankzij de schuifdeur wordt er geen onnodige ruimte ingenomen, wat de toegankelijkheid vergroot en de kamer optimaal benut.

Interesse?
Plan een bezoek!